play-sharp-fill
  • 86 m2
  • 2
  • A

Marktplein 90

7391 DZ Twello
€ 422.000,- k.k.

Omschrijving

Wonen op een fijne locatie midden in het centrum van Twello? Welkom aan het Marktplein 90!

Het appartement is gelegen op de tweede verdieping van het appartementencomplex en heeft een eigen berging op de begane grond. Het complex is gebouwd in 1997 en er is een trappenhuis met lift en video/intercominstallatie aanwezig.

De ligging is ideaal: op loopafstand van alle voorzieningen zoals winkels, supermarkten, openbaar vervoer en station. Rondom het complex is voldoende openbare parkeerruimte aanwezig.

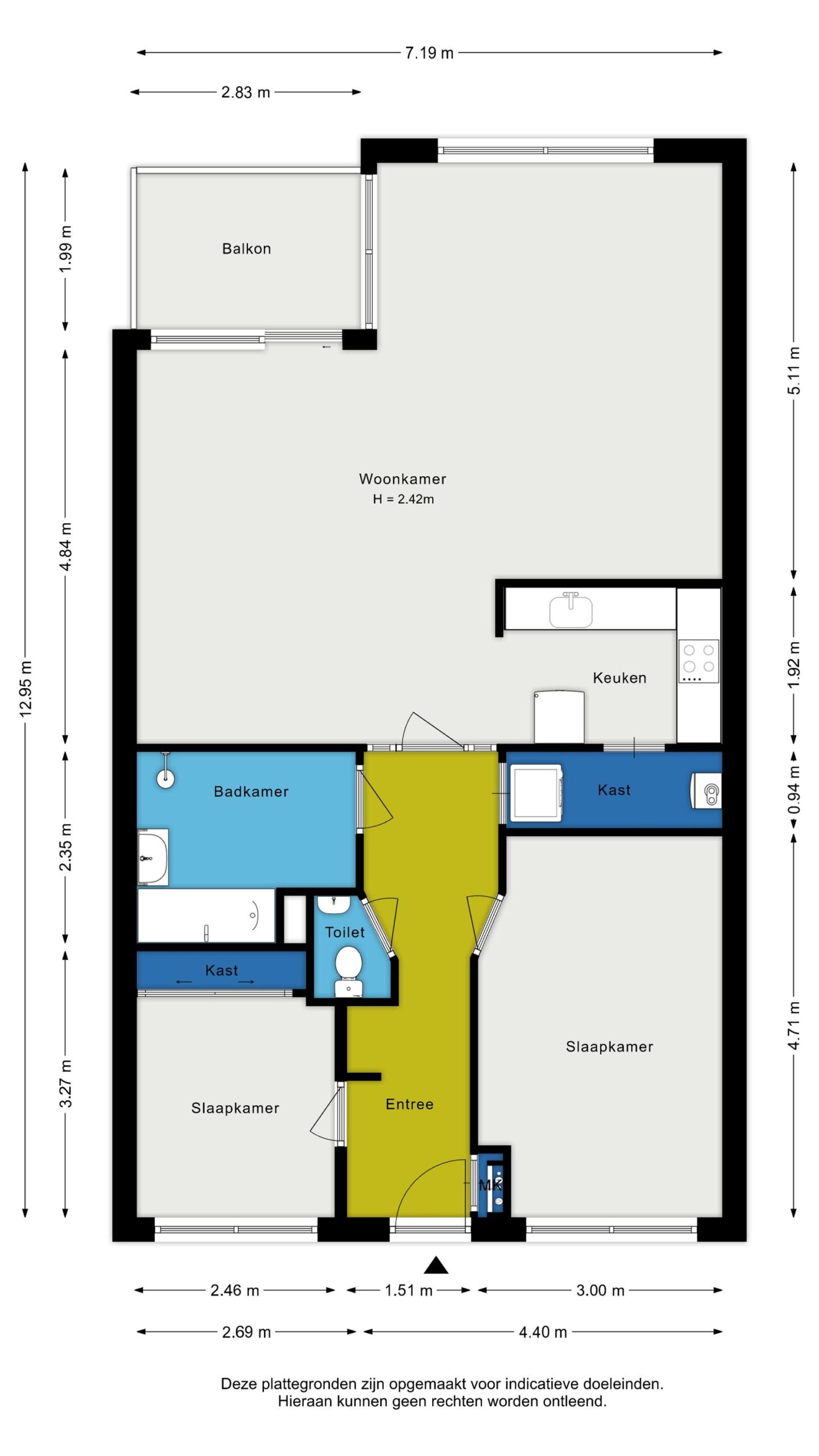
Door het appartement heen:
via de voordeur kom je in de hal met meterkast en toilet. De hal geeft toegang tot alle ruimtes. Aan de voorzijde is de royale woonkamer met een schuifdeur naar het zonnige balkon met uitzicht op de Van Ghentstraat. Aansluitend de halfopen keuken met inbouwapparatuur. Praktisch is de bergkast die vanuit de keuken en de hal bereikbaar is. Hier is de opstelling C.V. en wasmachine-aansluiting. Er zijn twee slaapkamers aan de achterzijde waarvan één met een kastenwand. De badkamer is voorzien van een ligbad, separate douche en wastafel.

Algemene kenmerken:
- Geheel geïsoleerd en voorzien van dubbel glas
- De hal, woonkamer en keuken zijn voorzien van een mooie laminaatvloer
- Energielabel A
- VvE bijdrage is € 201,49 per maand
- Gebruiksoppervlakte 86 m² en inhoud 262 m³
- Het appartement wordt verkocht met een niet zelfbewoningsclausule en er is geen NVM Vragenlijst aanwezig


Wilt u deze woning bezichtigen? Plan dan op ieder moment zelf online uw afspraak in via onze website of vraag een bezichtiging aan via Funda! Graag op een ander moment een afspraak? Dat is uiteraard ook geen probleem. Bel of e-mail ons gerust voor een afspraak op een ander moment.

Is dit jouw woning?

Interesse in deze woning, plan dan een bezichtiging in. We laten je de woning graag zien.

Bezichtiging aanvragen

Kenmerken

Overdracht

  • € 422.000,- k.k.
  • Beschikbaar
  • In overleg

Oppervlakte & inhoud

  • 86 m2
  • 262 m3

Bouw

  • Woonruimte
  • Bestaande bouw
  • A
  • 1997

Indeling

  • 3
  • 2
  • Mechanische ventilatie, Buitenzonwering, Lift, Schuifpui, Glasvezel kabel
Download brochure

Is dit niet jouw woning?

Plaats een zoekopdracht

Plaats een zoekopdracht

Jouw woning niet kunnen vinden in ons aanbod? Maak een zoekopdracht en we houden je op de hoogte van nieuw aanbod.

Gratis waardebepaling

Gratis waardebepaling

We verzorgen graag een gratis waardebepaling van jouw huidige woning, zo weet je precies waar je aan toe bent.

Meer hulp bij je aankoop

Meer hulp bij je aankoop

Moeite om de juiste woning te vinden of hulp nodig bij de onderhandeling? Daarvoor hebben we een speciale aankoopmakelaar.

© 2025 Van den Belt Makelaars | Algemene voorwaarden | Disclaimer | Privacy verklaring | Grafisch ontwerp Thumbs Up | Technische realisatie Sieronline B.V.