play-sharp-fill
  • 134 m2
  • 176 m2
  • 4
  • A

Burg. Crommelinlaan 71

7431 HD Diepenveen
€ 559.000,- k.k.

Omschrijving

Instapklaar, eigentijds en zeer energiezuinig wonen? Dat kan de Burg. Crommelinlaan 71 in Diepenveen!

Deze in 2021 gebouwde hoekwoning is strak, sfeervol en tot in de puntjes verzorgd. Dankzij de moderne afwerking kun je hier zó intrekken. Comfort, stijl en duurzaamheid komen hier perfect samen. De woning is volledig geïsoleerd, voorzien van vloerverwarming op zowel de begane grond als de eerste verdieping, waarmee verwarmd en gekoeld kan worden. Dankzij de warmtepomp en de acht zonnepanelen op het dak profiteer je van lage energiekosten én comfortabel wonen.

De woning is gelegen op een perceel van 176 m². De achtertuin ligt op het oosten, is netjes aangelegd en beschikt over meerdere zithoeken, waaronder een groot terras met een glazen overkapping die volledig kan worden afgesloten met glazen deuren. Dankzij de overkapping is er een heerlijke plek gecreëerd om tot in de zomeravond buiten te kunnen zitten. Verder is er een vrijstaande houten berging aanwezig en is de tuin ook via de zijkant langs de woning bereikbaar.

De woning bevindt zich in het dorp Diepenveen, omgeven door bos- en weidegebieden, landgoederen en kastelen. In de directe omgeving zijn diverse wandel- en fietsroutes te vinden in het prachtige Sallandse landschap. Het dorp ligt op slechts een kwartiertje fietsen van het historische centrum van Deventer. Diepenveen maakt deel uit van de gemeente Deventer, maar beschikt over eigen sport- en culturele voorzieningen. In de nabije omgeving vind je onder andere een groot regionaal ziekenhuis en de Sallandsche Golfclub “De Hoek”, een 18-holes golfbaan op korte afstand. De A1 is binnen 15 autominuten bereikbaar en er is een uitstekende busverbinding naar Deventer en Zwolle. Het NS-station van Deventer biedt rechtstreekse verbindingen met onder meer Utrecht Centraal.

Door de woning heen:
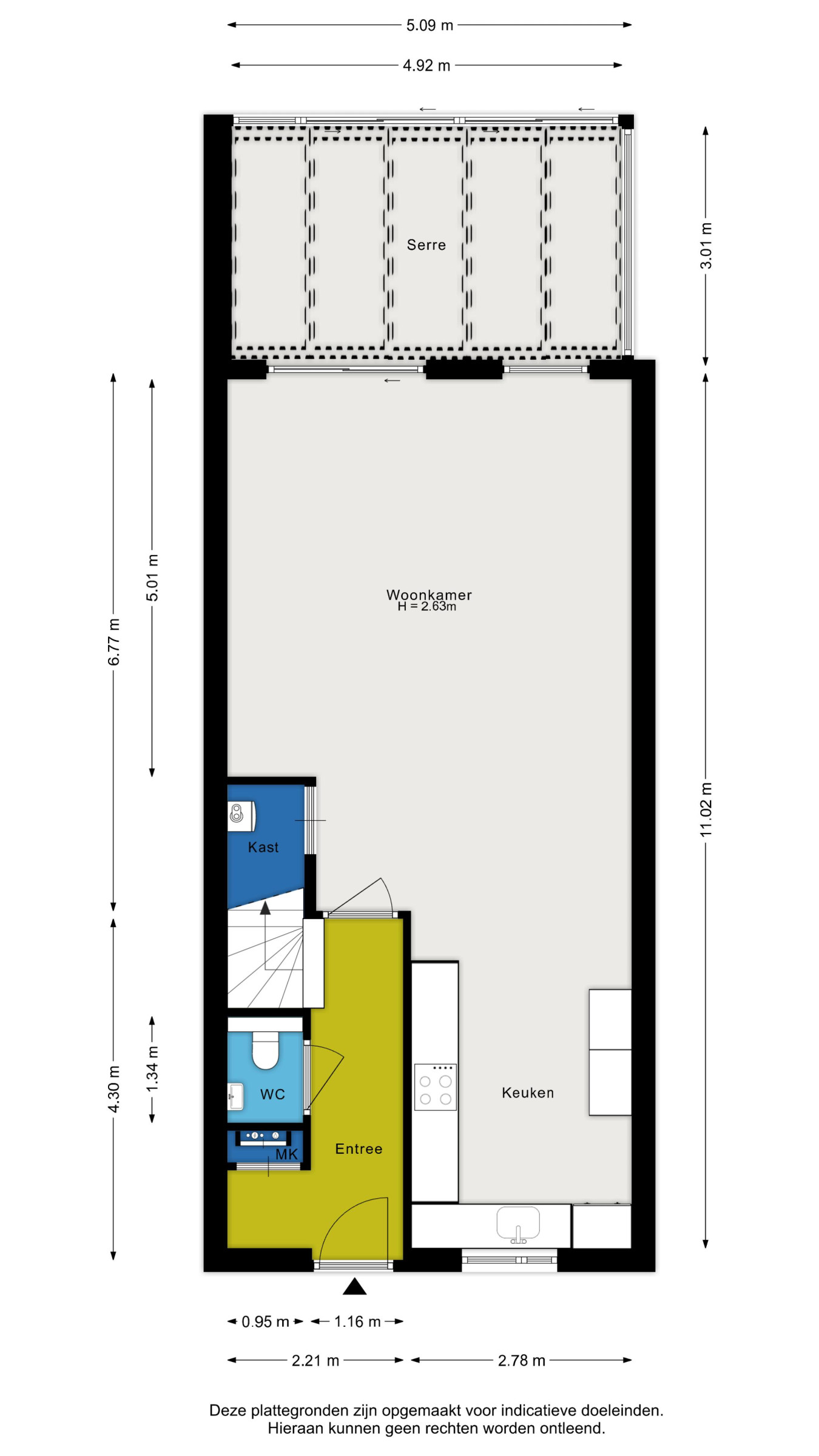
Via de entree aan de voorzijde stap je binnen in de hal, waar zich het toilet, de meterkast en de trapopgang naar de verdieping bevinden. Vanuit hier loop je door naar de leefruimte met aan de voorzijde de moderne keuken. Deze is uitgevoerd in een lichte kleurstelling en beschikt over alle benodigde inbouwapparatuur. De woning is over de volle breedte 1,2 m uitgebouwd waardoor er een fijne leefruimte is ontstaan. De sfeervolle woonkamer is gesitueerd aan de achterzijde. Er is voldoende ruimte voor een eethoek en royale zithoek. Via de schuifpui loop je het terras op en de tuin in.

Via de overloop bereik je op de verdieping drie slaapkamers en de badkamer. Deze slaapkamers zijn allen van een goed formaat. De badkamer is modern afgewerkt in een neutrale kleurstelling en voorzien van een inloopdouche, toilet en wastafelmeubel.

Via de vaste trap bereik je de tweede verdieping. De royale zolder biedt de mogelijkheid om een vierde en zelfs vijfde slaapkamer te realiseren. Op deze verdieping vind je de aansluiting voor de wasmachine.

Enkele kenmerken
- 8 zonnepanelen
- energielabel A
- Gebruiksoppervlakte 134 m², externe bergruimte 9 m² en inhoud 491 m³

Wil je deze woning bezichtigen? Plan dan zelf online een afspraak in via onze website of vraag een bezichtiging aan via Funda! Is er geen passend moment meer beschikbaar? Dat is uiteraard ook geen probleem. Bel of e-mail ons gerust voor een afspraak op een ander moment.

Is dit jouw woning?

Interesse in deze woning, plan dan een bezichtiging in. We laten je de woning graag zien.

Bezichtiging aanvragen

Kenmerken

Overdracht

  • € 559.000,- k.k.
  • Beschikbaar
  • In overleg

Oppervlakte & inhoud

  • 134 m2
  • 491 m3
  • 176 m2
  • Oost

Bouw

  • Woonruimte
  • Bestaande bouw
  • A
  • 2021

Indeling

  • 5
  • 4
  • Mechanische ventilatie, Schuifpui, Dakraam, Glasvezel kabel, Zonnepanelen
Download brochure

Is dit niet jouw woning?

Plaats een zoekopdracht

Plaats een zoekopdracht

Jouw woning niet kunnen vinden in ons aanbod? Maak een zoekopdracht en we houden je op de hoogte van nieuw aanbod.

Gratis waardebepaling

Gratis waardebepaling

We verzorgen graag een gratis waardebepaling van jouw huidige woning, zo weet je precies waar je aan toe bent.

Meer hulp bij je aankoop

Meer hulp bij je aankoop

Moeite om de juiste woning te vinden of hulp nodig bij de onderhandeling? Daarvoor hebben we een speciale aankoopmakelaar.

© 2025 Van den Belt Makelaars | Algemene voorwaarden | Disclaimer | Privacy verklaring | Grafisch ontwerp Thumbs Up | Technische realisatie Sieronline B.V.