play-sharp-fill
  • 166 m2
  • 5.010 m2
  • 2

Bandijk 15

7396 NB Terwolde
€ 1.350.000,- k.k.

Omschrijving

Welkom bij landhuis Ter Cera. Welkom aan de Bandijk 15 in Terwolde! 

Dit prachtige gemeentelijk monument kent een rijke geschiedenis welke terug gaat naar de 18de eeuw. De huidige eigenaren hebben er een waar plaatje van gemaakt met oog voor de geschiedenis van deze plek. Stap hier binnen en je voelt direct de authentieke sfeer, gecombineerd met het comfort van nu. 

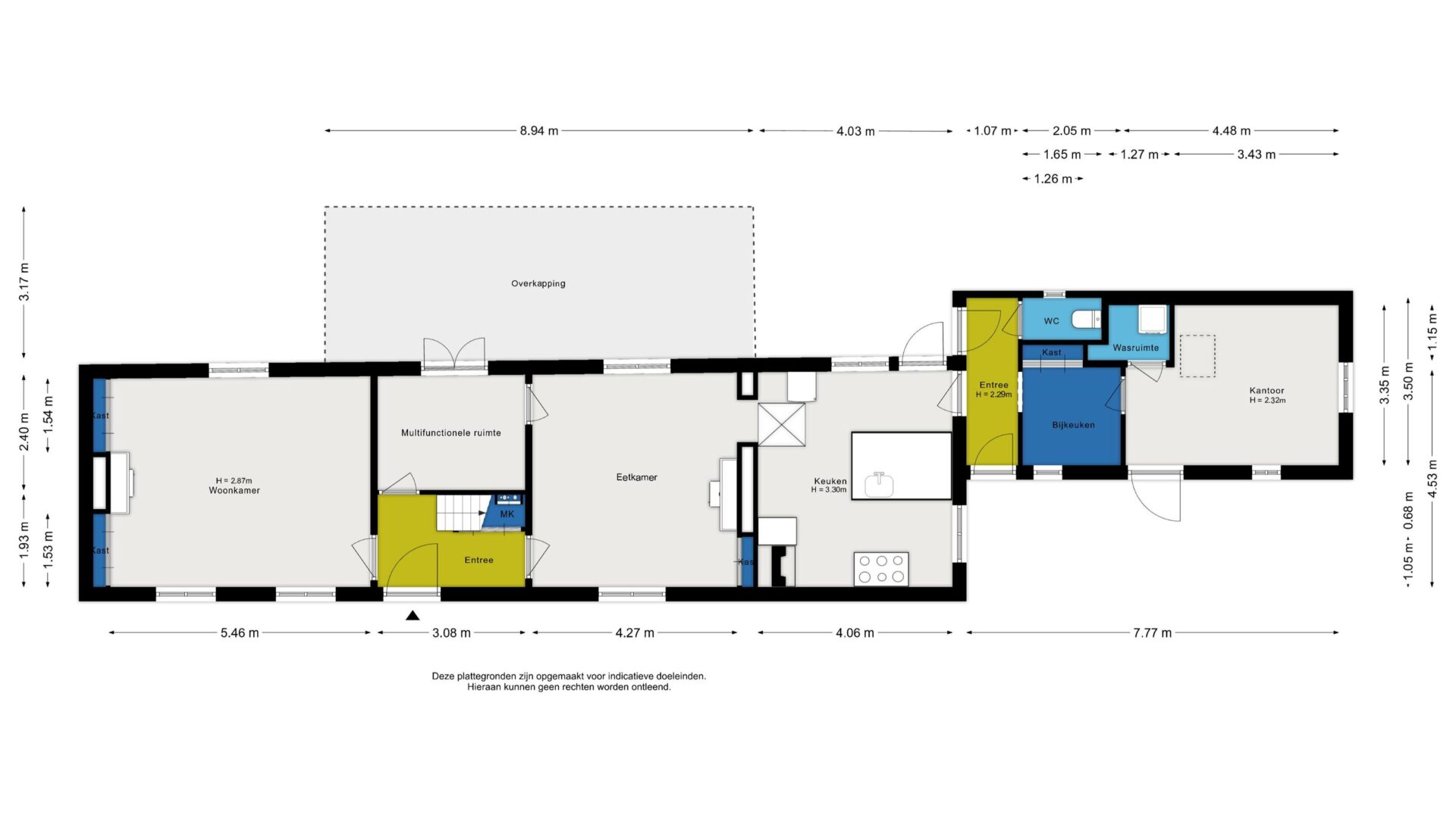
De woning heeft een langwerpige, rechthoekige plattegrond en meet zowel op de begane grond als op de verdieping ruim 18 meter in lengte en 4,5 meter in breedte. Dankzij deze royale afmetingen biedt het huis verrassend veel leefruimte en een praktische en bijzondere indeling.

Op het perceel staat naast de woning een houten schuur met een volledige bergzolder. Deze schuur is voorzien van een geïsoleerd dak en gevel, waardoor deze schuur veel mogelijkheden biedt. In de schuur is ook een toilet aanwezig en beschikt over een eigen c.v.-ketel en krachtstroom. Een ideale mogelijkheid om hier een kantoor- of praktijkruimte aan huis te beginnen. Ook voor een B&B aan huis biedt dit veel mogelijkheden! Maar heb je ruimte voor opslag nodig, dan kun je hier ook je spullen kwijt. 

Via een pad vanaf de dijk rijd je het erf op, waarbij je direct de rust en de besloten ligging ervaart. Er staat een kapschuur die plaats biedt aan twee auto’s. Via een hekwerk loop je het perceel van maar liefst 5.010 m² op. Oorspronkelijk bevond zich op het terrein een kolk en was de woning geheel omgracht. Rond 2006 is dit deels opnieuw in ere hersteld.

De combinatie van monumentale uitstraling, functionele bijgebouwen en de unieke ligging maken Bandijk 15 tot een bijzonder object. Een plek waar historie en hedendaags wonen naadloos samenkomen. 

Een stukje geschiedenis: het landhuis Ter Cera is genoemd naar Terceira, een eiland van de Azoren. Waarschijnlijk werd het landhuis gebouwd door een vermogende aandeelhouder van de VOC of WIC, die zijn huis vernoemde naar een plek die een rol speelde in de handelsroutes en de daarmee verworven rijkdom. Het langgerekte, gepleisterde pand met schilddak werd rond 1850 verbouwd en uitgebreid. Oorspronkelijk lag het landhuis aan een kolk, die het geheel een statige uitstraling gaf en de mogelijkheid bood om het huis te omgrachten. Rond 1950 werd de kolk gedempt met grond uit het nieuwe Afvoerkanaal, maar in 2006 is begonnen met het herstel. Daarbij werd ook het verdwenen wiel teruggebracht.
 
Door de woning heen: 
Via de voordeur loop je de hal binnen waar direct de trapopgang naar de verdieping opvalt. De woonkamer bevindt zich aan de linkerkant met zowel ramen aan de voor- als achterzijde. De schouw is een echte eyecatcher in deze ruimte. Terug naar de hal lopen we via een kamer, via open slaande deuren loop je het terras op, naar de eetkamer. Ook hier valt direct de mooie schouw op in de ruimte. Dan de keuken waar de originele oven/stook nog geheel in beeld is. Daarom heen is een hedendaagse keuken gecreëerd die voorzien is van alle gemakken. In de aangebouwde berging bevinden zich de garderobe, het toilet en de werkkamer/kantoor. 

Op de eerste verdieping zijn twee ruime slaapkamers en een badkamer. De slaapkamers bevinden zich ieder aan een kant van de woning en beschikken over vaste kasten. De badkamer is luxe uitgevoerd en voorzien van een vrijstaand ligbad, wastafelmeubel, toilet, douche en sauna.

Locatie: 
Het dorp Terwolde met diverse basisvoorzieningen, zoals een supermarkt, basisschool, huisartsenpraktijk, fysiotherapiepraktijk, openbaar vervoer, dorpshuis, sportvereniging en horecagelegenheden is gelegen op een korte afstand. Binnen 10 autominuten ben je in hartje Deventer of het dorp Twello. Twello kent een groot aanbod aan voorzieningen. De prachtige Hanzestad heeft een groot aanbod van winkels, horeca en voorzieningen maar ook ben je binnen 10 minuten rijafstand bij de A1 en/of de A50.

Is dit jouw woning?

Interesse in deze woning, plan dan een bezichtiging in. We laten je de woning graag zien.

Bezichtiging aanvragen

Kenmerken

Overdracht

  • € 1.350.000,- k.k.
  • Beschikbaar
  • In overleg

Oppervlakte & inhoud

  • 166 m2
  • 771 m3
  • 5.010 m2

Bouw

  • Woonruimte
  • Bestaande bouw
  • 1628

Indeling

  • 4
  • 2
  • Mechanische ventilatie, TV kabel, Rookkanaal, Sauna, Glasvezel kabel
Download brochure

Is dit niet jouw woning?

Plaats een zoekopdracht

Plaats een zoekopdracht

Jouw woning niet kunnen vinden in ons aanbod? Maak een zoekopdracht en we houden je op de hoogte van nieuw aanbod.

Gratis waardebepaling

Gratis waardebepaling

We verzorgen graag een gratis waardebepaling van jouw huidige woning, zo weet je precies waar je aan toe bent.

Meer hulp bij je aankoop

Meer hulp bij je aankoop

Moeite om de juiste woning te vinden of hulp nodig bij de onderhandeling? Daarvoor hebben we een speciale aankoopmakelaar.

© 2025 Van den Belt Makelaars | Algemene voorwaarden | Disclaimer | Privacy verklaring | Grafisch ontwerp Thumbs Up | Technische realisatie Sieronline B.V.