play-sharp-fill
  • 88 m2
  • 260 m2
  • 3
  • C

Grote Barteldweg 19

7391 CK Twello
€ 399.000,- k.k.

Omschrijving

Wonen op een toplocatie, midden in het centrum van Twello met alle voorzieningen op loopafstand? Welkom aan de Grote Barteldweg 19 in Twello!

De woning is gebouwd in 1958 en vormt een uitstekende basis voor wie op zoek is naar een fijne plek en biedt de kans om geheel naar eigen smaak te moderniseren. Gelegen op een ruim perceel van 260 m² met een garage, carport, 2 bergingen en parkeergelegenheid op eigen terrein. De royale achtertuin gesitueerd op het noordoosten met vijver en ruim terras maakt het geheel compleet en biedt een fijne plek om te ontspannen, midden in het levendige dorp.

De ligging is ideaal, om de hoek zijn alle voorzieningen zoals winkels, supermarkten, horeca, medisch centrum en het NS-station. De buurt kenmerkt zich door de gemoedelijke sfeer en is een fijne woonomgeving voor jong en oud. Ook de uitvalswegen richting Deventer en Apeldoorn zijn snel bereikbaar.

Door de woning heen:
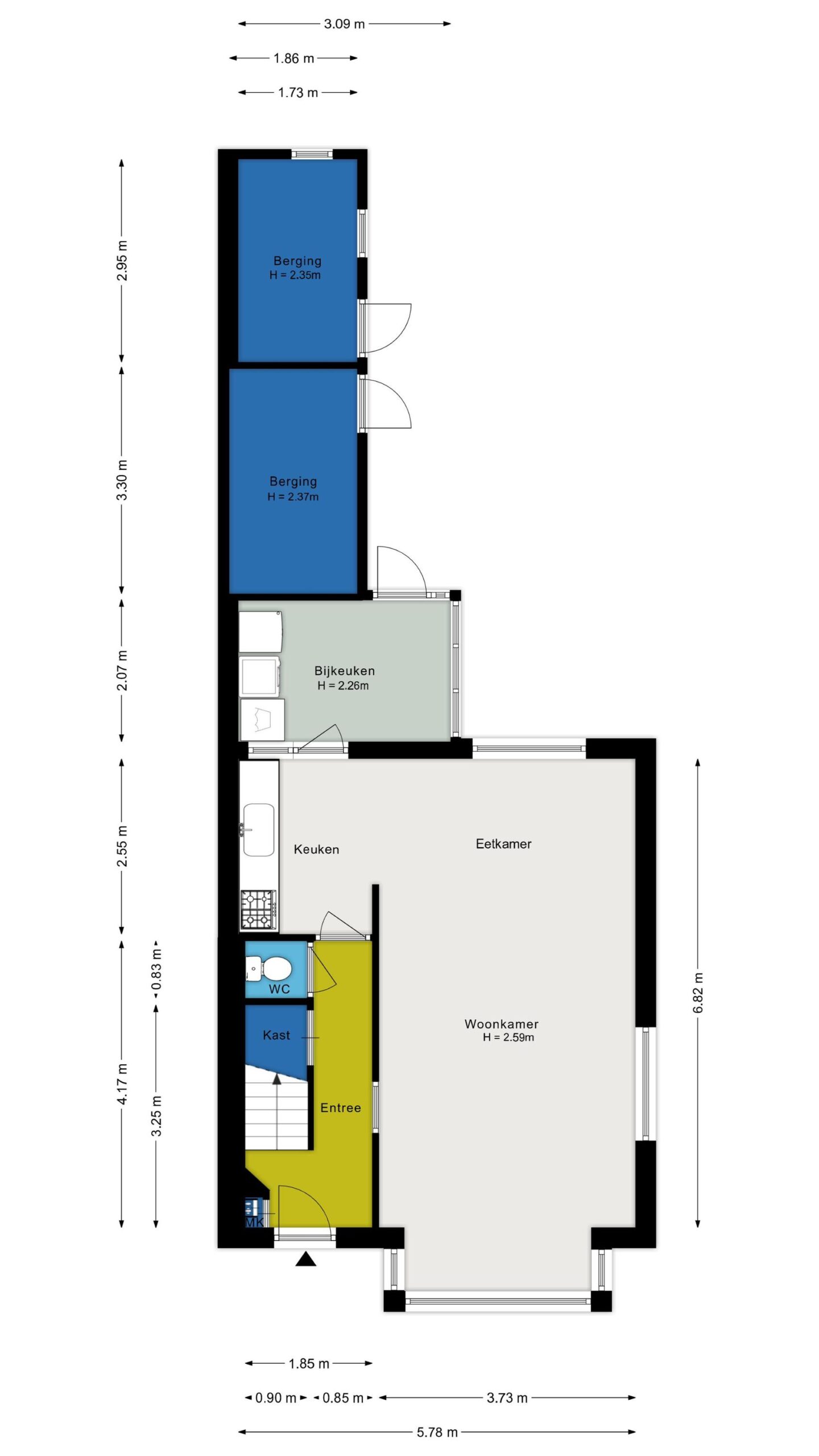
Via de voordeur loop je de hal binnen. Hier is de meterkast, toilet, trap/kelderkast en trapopgang naar de verdieping. De doorzonwoonkamer heeft een prettige lichtinval, parketvloer en een erker aan de voorzijde. Aan de achterzijde ligt de half open keuken. Deze is vanuit de hal en woonkamer bereikbaar en is eenvoudig uitgevoerd. Aansluitend de uitgebouwde, praktische bijkeuken met aansluiting voor de wasmachine en toegang tot de tuin.

Op de eerste verdieping geeft de overloop toegang tot drie slaapkamer en de badkamer. De slaapkamers zijn van een prima formaat en allen voorzien van vaste kasten. De badkamer is voorzien van een wastafelmeubel, douchecabine en toilet.

Via een vaste trap is de tweede verdieping bereikbaar. Hier is de voorzolder met opstelling C.V. en een ruime zolderruimte met dakraam. Door een verbouwing kan deze ruimte prima als slaapkamer gebruikt worden.

Enkele kenmerken:
• Energielabel C
• De woning is voorzien van spouwmuurisolatie en gedeeltelijk voorzien van dubbel glas
• De woning wordt verkocht met een niet-zelfbewoningsclausule
• Gebruiksoppervlakte 88 m², overige inpandige ruimte 17 m² en inhoud 380 m³

Wil je deze woning bezichtigen? Plan dan zelf online een afspraak in via onze website of vraag een bezichtiging aan via Funda! Is er geen passend moment meer beschikbaar? Dat is geen probleem, bel of e-mail ons gerust voor een afspraak op een ander moment.

Is dit jouw woning?

Interesse in deze woning, plan dan een bezichtiging in. We laten je de woning graag zien.

Bezichtiging aanvragen

Kenmerken

Overdracht

  • € 399.000,- k.k.
  • Beschikbaar
  • In overleg

Oppervlakte & inhoud

  • 88 m2
  • 380 m3
  • 260 m2
  • Noordoost

Bouw

  • Woonruimte
  • Bestaande bouw
  • C
  • 1958

Indeling

  • 5
  • 3
  • Dakraam
Download brochure

Is dit niet jouw woning?

Plaats een zoekopdracht

Plaats een zoekopdracht

Jouw woning niet kunnen vinden in ons aanbod? Maak een zoekopdracht en we houden je op de hoogte van nieuw aanbod.

Gratis waardebepaling

Gratis waardebepaling

We verzorgen graag een gratis waardebepaling van jouw huidige woning, zo weet je precies waar je aan toe bent.

Meer hulp bij je aankoop

Meer hulp bij je aankoop

Moeite om de juiste woning te vinden of hulp nodig bij de onderhandeling? Daarvoor hebben we een speciale aankoopmakelaar.

© 2026 Van den Belt Makelaars | Algemene voorwaarden | Disclaimer | Privacy verklaring | Grafisch ontwerp Thumbs Up | Technische realisatie Sieronline B.V.