play-sharp-fill
  • 131 m2
  • 300 m2
  • 5
  • B

Hietweideweg 66

7391 XX Twello
Verkocht onder voorbehoud

Omschrijving

Een verrassend ruim helft van dubbel woonhuis met een fijne leefruimte, 5 slaapkamers en aangebouwde garage.
Welkom aan de Hietweideweg 66 in Twello!

Deze woning is gebouwd in 1992 en is een ideale, verrassend ruime gezinswoning. De woning is gelegen op een perceel van 300 m² met een aangebouwde stenen garage met uitstortgootsteen. Ook is er een carport met lichtkoepel en een eigen oprit voor het parkeren van een auto. De achtertuin is gesitueerd op het westen en is voorzien van groen en terras.

Gelegen in een gemoedelijke en kindvriendelijke woonomgeving met speelvoorzieningen in de buurt. De locatie is erg gunstig op fietsafstand van alle voorzieningen zoals winkels, scholen, sportverenigingen en NS-station. De uitvalswegen en de steden Deventer en Apeldoorn zijn op korte afstand gelegen.

Door de woning heen:
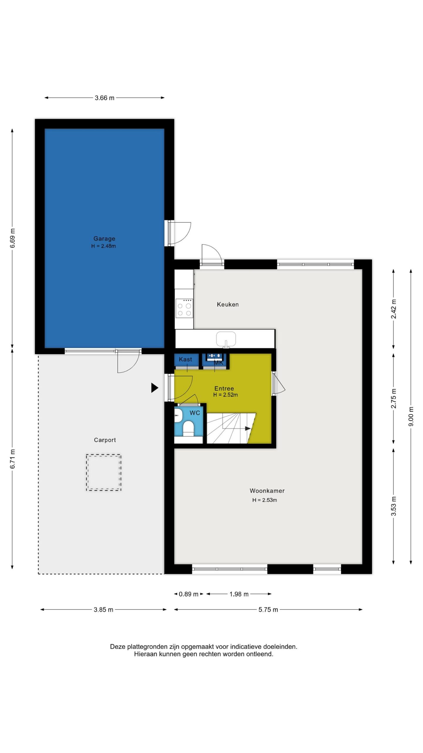
via de voordeur aan de zijkant van de woning loop je de hal binnen. Hier is de meterkast, bergkast, toilet en trapopgang, de woonkamer heeft aan de voorzijde het zithoekgedeelte met fraai uitzicht, aan de achterzijde is voldoende ruimte voor een eethoek met aansluitend de in 2022 vernieuwde keuken. Deze is voorzien van inbouwapparatuur en deur naar de tuin.

Op de eerste verdieping zijn drie ruime slaapkamers en een moderne badkamer. Aan de voorzijde zijn twee slaapkamers waarvan 1 met kastenwand en aan de achterzijde is de derde slaapkamer met kastenwand. De moderne badkamer beschikt over een inloopdouche, wastafelmeubel en toilet.

Op de tweede verdieping biedt de overloop toegang tot twee royale slaapkamers. Op de slaapkamer aan de achterzijde is is de opstelling C.V. en wasmachine-aansluiting.

Enkele kenmerken:
- De woning is geheel geïsoleerd en nagenoeg geheel voorzien van dubbel glas
- Kunststof kozijnen op de 1e en 2e verdieping
- Energielabel B
- Gebruiksoppervlakte 131 m², overige inpandige ruimte 24 m² en inhoud 552 m³

Wil je deze woning bezichtigen? Plan dan op ieder moment zelf online de afspraak in via onze website of vraag een bezichtiging aan via Funda! Graag op een ander moment een afspraak? Dat is uiteraard ook geen probleem. Bel of e-mail ons gerust voor een afspraak op een ander moment.

Kenmerken

Overdracht

  • Verkocht onder voorbehoud

Oppervlakte & inhoud

  • 131 m2
  • 552 m3
  • 300 m2
  • West

Bouw

  • Woonruimte
  • Bestaande bouw
  • B
  • 1992

Indeling

  • 6
  • 5
  • Mechanische ventilatie, Buitenzonwering, Glasvezel kabel

Is dit niet jouw woning?

Plaats een zoekopdracht

Plaats een zoekopdracht

Jouw woning niet kunnen vinden in ons aanbod? Maak een zoekopdracht en we houden je op de hoogte van nieuw aanbod.

Gratis waardebepaling

Gratis waardebepaling

We verzorgen graag een gratis waardebepaling van jouw huidige woning, zo weet je precies waar je aan toe bent.

Meer hulp bij je aankoop

Meer hulp bij je aankoop

Moeite om de juiste woning te vinden of hulp nodig bij de onderhandeling? Daarvoor hebben we een speciale aankoopmakelaar.

© 2025 Van den Belt Makelaars | Algemene voorwaarden | Disclaimer | Privacy verklaring | Grafisch ontwerp Thumbs Up | Technische realisatie Sieronline B.V.