play-sharp-fill
  • 118 m2
  • 720 m2
  • 3
  • E

Lindelaan 26

7391 JZ Twello
€ 669.000,- k.k.

Omschrijving

Welkom aan de Lindelaan 26 in Twello, een karakteristieke jaren '30 woning in een schitterende, groene omgeving!

Ben je op zoek naar een huis met sfeer, karakter én mogelijkheden? Dan is deze vrijstaande woning precies wat je zoekt. Gelegen in een bosrijke en rustige omgeving, biedt deze woning alles om er jouw droomhuis van te maken. De woning ademt de charme van vroeger, met authentieke elementen zoals een erker aan de voorzijde, glas-in-loodramen, een terrazzo vloer en originele paneeldeuren. Tegelijkertijd biedt het volop ruimte om je eigen stijl en ideeën toe te passen. Een perfecte combinatie van nostalgie en potentie!

Op het royale perceel van maar liefst 720 m² geniet je van rust, privacy en groen. De tuin is rijk aan volwassen beplanting en biedt een fijne mix van zon en schaduw, ideaal om op elk moment van de dag van het buitenleven te genieten. De eigen oprit biedt plaats aan meerdere auto’s en de stenen berging is perfect voor fietsen, tuingereedschap of om als hobbyruimte te gebruiken. Kortom: een heerlijke plek waar ruimte, natuur en comfort samenkomen.

Locatie
De Lindelaan kenmerkt zich als een fraaie en groene locatie. Het uitgebreide dorpscentrum van Twello met alle voorzieningen zoals een ruim winkelaanbod, supermarkten, scholen, openbaar vervoer en het NS-station zijn op fiets- en loopafstand gelegen. Ook ben je binnen 10 (fiets)minuten in de binnenstad van Deventer en de uitvalswegen zijn ook binnen enkele minuten aan te rijden.

Indeling van de woning
Via de voordeur kom je binnen in de hal, van waaruit je toegang hebt tot de kelder, het toilet, de woonkamer en de keuken. De woonkamer is voorzien van een sfeervolle erker en een houtkachel. De oorspronkelijke en-suite deuren kunnen eenvoudig in ere worden hersteld. Aan de achterzijde geven openslaande deuren toegang tot de overkapping en de tuin. De keuken is eenvoudig uitgevoerd en grenst aan een praktische bijkeuken met kastenwand, wasmachineaansluiting en de opstelplaats voor de cv-ketel.

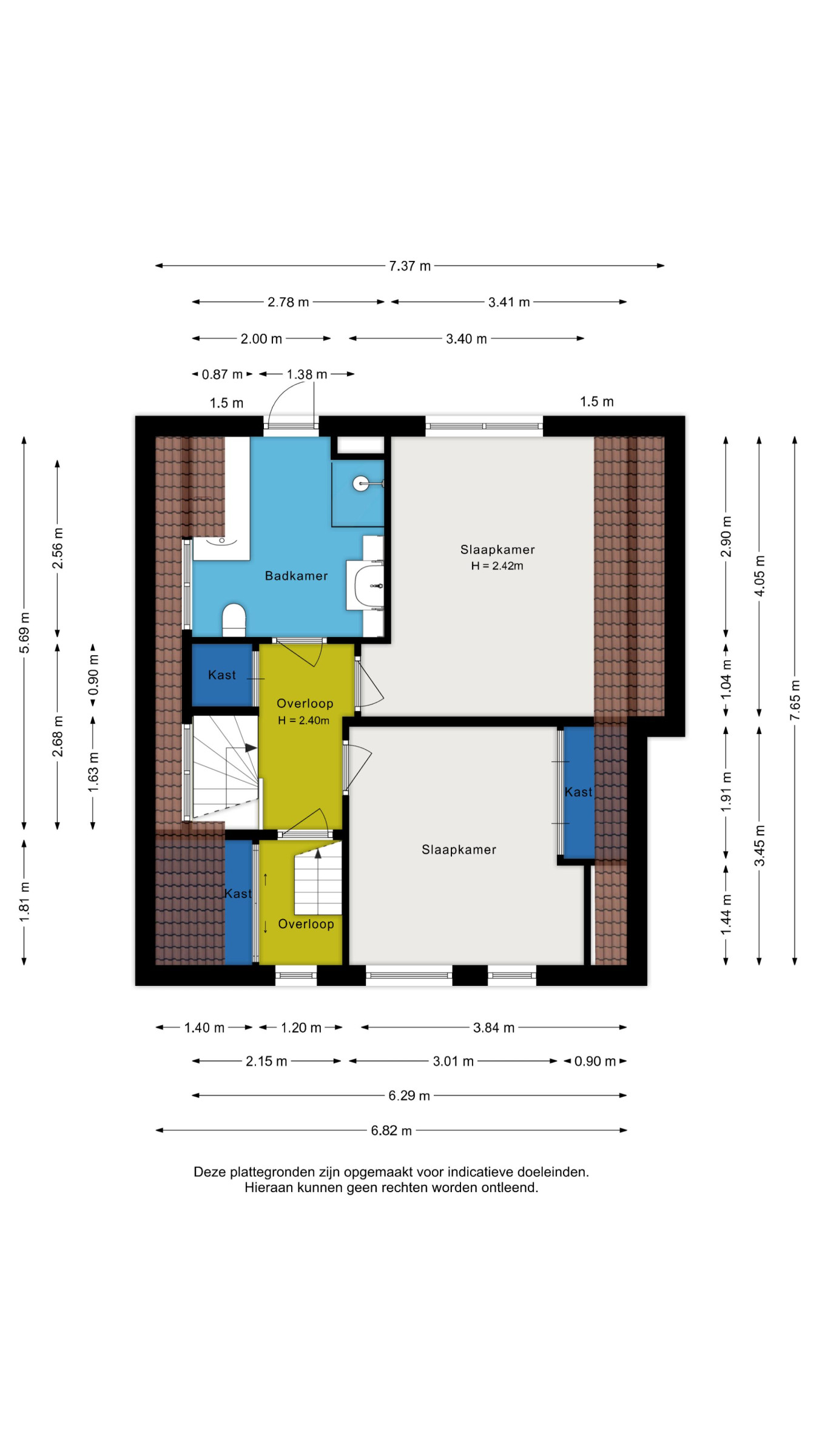
Op de eerste verdieping bevinden zich twee royale slaapkamers en een badkamer met ligbad, douche, wastafelmeubel en toilet. In de voormalige derde slaapkamer is een kastenwand geplaatst en een vaste trap naar de tweede verdieping. Daar vind je een ruime open zolder met dakkapel, wastafel en een aparte bergruimte.

Enkele kenmerken
Energielabel E
Gebruiksoppervlakte 118 m², externe bergruimte 18 m² en inhoud 432 m³

Wil je deze woning bezichtigen? Plan dan op ieder moment zelf online de afspraak in via onze website of vraag een bezichtiging aan via Funda! Graag op een ander moment een afspraak? Dat is uiteraard ook geen probleem. Bel of e-mail ons gerust voor een afspraak op een ander moment.

Is dit jouw woning?

Interesse in deze woning, plan dan een bezichtiging in. We laten je de woning graag zien.

Bezichtiging aanvragen

Kenmerken

Overdracht

  • € 669.000,- k.k.
  • Beschikbaar
  • In overleg

Oppervlakte & inhoud

  • 118 m2
  • 432 m3
  • 720 m2
  • Noordoost

Bouw

  • Woonruimte
  • Bestaande bouw
  • E
  • 1933

Indeling

  • 5
  • 3
  • TV kabel, Rookkanaal, Dakraam, Glasvezel kabel, Zonnepanelen
Download brochure

Is dit niet jouw woning?

Plaats een zoekopdracht

Plaats een zoekopdracht

Jouw woning niet kunnen vinden in ons aanbod? Maak een zoekopdracht en we houden je op de hoogte van nieuw aanbod.

Gratis waardebepaling

Gratis waardebepaling

We verzorgen graag een gratis waardebepaling van jouw huidige woning, zo weet je precies waar je aan toe bent.

Meer hulp bij je aankoop

Meer hulp bij je aankoop

Moeite om de juiste woning te vinden of hulp nodig bij de onderhandeling? Daarvoor hebben we een speciale aankoopmakelaar.

© 2025 Van den Belt Makelaars | Algemene voorwaarden | Disclaimer | Privacy verklaring | Grafisch ontwerp Thumbs Up | Technische realisatie Sieronline B.V.