play-sharp-fill
  • 133 m2
  • 429 m2
  • 4
  • A+

Mozartstraat 108

7391 XM Twello
€ 550.000,- k.k.

Omschrijving

Op zoek naar een royale twee-onder-een-kapwoning met ruime oprit én garage? Welkom aan de Mozartstraat 108 in Twello!

Deze twee-onder-een-kapwoning ligt aan een rustig en kindvriendelijk woonerf. De woning is aan de buitenzijde keurig onderhouden en beschikt deels over kunststof kozijnen en kunststof gevelbeplating. De woning is niet alleen goed onderhouden, maar ook toekomstgericht: volledig geïsoleerd (gevel, dak en vloer), uitgerust met dubbel glas, voorzien van een hybride warmtepomp in combinatie met de C.V.-ketel (geplaatst in september 2025) én 8 zonnepanelen. Dit alles zorgt ervoor dat de woning energielabel A+ heeft.

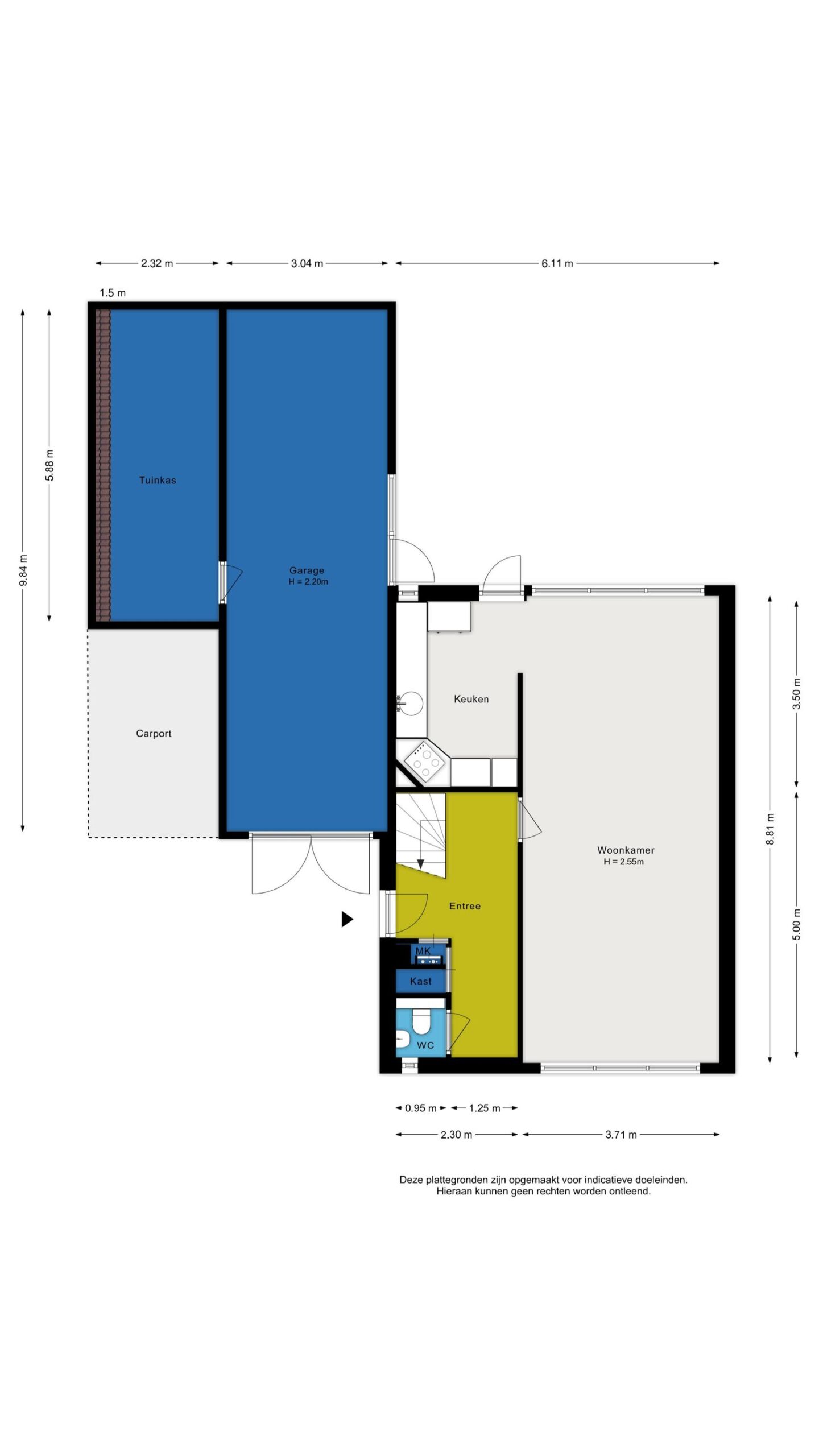
Het geheel is gelegen op een royaal perceel van 429 m² en biedt volop ruimte rondom de woning. De groene achter- en zijtuin liggen gunstig op het zuidwesten, waardoor je de hele dag door kunt genieten van de zon. De tuin vormt een heerlijke oase van rust, met daarnaast een royale kas voor het kweken van je eigen groenten of planten. Naast de woning bevindt zich een ruime stenen garage, ideaal voor het stallen van een auto, extra opslag of als hobbyruimte. Aan de voorzijde bevindt zich de oprit met carport, waar voldoende ruimte is om meerdere auto's te parkeren.

De woning ligt in een rustige, ruim opgezette en kindvriendelijke wijk. Alle voorzieningen van het gezellige centrum van Twello bevinden zich op korte afstand. Scholen, sportverenigingen, het NS-station en uitvalswegen (A1/A50) zijn eveneens binnen enkele minuten bereikbaar.

Door de woning heen:
Via de voordeur kom je binnen in de hal met garderobe, bergkast, meterkast, toilet en trapopgang naar de verdieping.
De lichte, ruime doorzonwoonkamer heeft een zithoek aan de voorzijde van de woning en een royale eethoek aan de tuinzijde. De grote raampartijen zorgen voor een prettige lichtinval. Aansluitend vind je de open keuken, uitgevoerd in een lichte kleurstelling en voorzien van inbouwapparatuur. Vanuit de keuken loop je direct de zonnige tuin in.

Op de eerste verdieping geeft de overloop toegang tot drie ruime slaapkamers en de badkamer. De slaapkamers hebben een goed formaat, de grootste slaapkamer is voorzien van een inbouwkast. De badkamer is uitgevoerd met een ligbad, toilet, douche, wastafelmeubel en wasmachine-aansluiting.

Via een vaste trap bereik je de tweede verdieping. Op de overloop is veel bergruimte aanwezig achter de knieschotten en bevindt zich de opstelling van de hybride warmtepomp. Daarnaast vind je hier een vierde royale slaapkamer, voorzien van een groot dakraam waardoor ook deze kamer prettig licht is.

Enkele kenmerken:
- Energielabel A+
- 8 zonnepanelen
- Gebruiksoppervlakte 133 m², Overige inpandige ruimte 30 m² en inhoud 561 m³.

Wil je deze woning bezichtigen? Plan dan zelf online een afspraak in via onze website of vraag een bezichtiging aan via Funda! Is er geen passend moment meer beschikbaar? Dat is geen probleem, bel of e-mail ons gerust voor een afspraak op een ander moment.

Is dit jouw woning?

Interesse in deze woning, plan dan een bezichtiging in. We laten je de woning graag zien.

Bezichtiging aanvragen

Kenmerken

Overdracht

  • € 550.000,- k.k.
  • Beschikbaar
  • In overleg

Oppervlakte & inhoud

  • 133 m2
  • 561 m3
  • 429 m2

Bouw

  • Woonruimte
  • Bestaande bouw
  • A+
  • 1976

Indeling

  • 5
  • 4
  • Dakraam, Glasvezel kabel, Zonnepanelen, Natuurlijke ventilatie
Download brochure

Is dit niet jouw woning?

Plaats een zoekopdracht

Plaats een zoekopdracht

Jouw woning niet kunnen vinden in ons aanbod? Maak een zoekopdracht en we houden je op de hoogte van nieuw aanbod.

Gratis waardebepaling

Gratis waardebepaling

We verzorgen graag een gratis waardebepaling van jouw huidige woning, zo weet je precies waar je aan toe bent.

Meer hulp bij je aankoop

Meer hulp bij je aankoop

Moeite om de juiste woning te vinden of hulp nodig bij de onderhandeling? Daarvoor hebben we een speciale aankoopmakelaar.

© 2025 Van den Belt Makelaars | Algemene voorwaarden | Disclaimer | Privacy verklaring | Grafisch ontwerp Thumbs Up | Technische realisatie Sieronline B.V.