play-sharp-fill
  • 89 m2
  • 110 m2
  • 3
  • B

Schoolstraat 25

7391 DA Twello
Verkocht

Omschrijving

Wonen op een fijne locatie in het centrum van Twello? Dat kan aan de Schoolstraat 25!

Deze woning is gelegen op een absolute toplocatie, midden in het centrum van Twello. Hier woon je op loopafstand van alle denkbare voorzieningen, met supermarkten en winkels binnen handbereik.

De woning is gebouwd in 1997 en is de afgelopen jaren met zorg verbouwd en keurig afgewerkt. Dankzij de aanwezige dak-, muur- en vloerisolatie in combinatie met dubbel glas woon je hier comfortabel. De woning beschikt over energielabel B. Dit maakt het een fijne plek voor wie op zoek is naar comfort en een prettige woonomgeving.

De onderhoudsvriendelijke achtertuin is gelegen op het zuiden. In de tuin bevindt zich een houten berging en is er een achterom aanwezig. Het perceel heeft een totale oppervlakte van 110 m². Er is een parkeerplek op eigen terrein aanwezig.

De ligging in het centrum is ideaal! Het uitgebreide aanbod aan voorzieningen zoals supermarkten, horeca, het medisch centrum en het NS-station zijn op loopafstand gelegen. Ook ben je binnen 10 (fiets)minuten in de binnenstad van Deventer en de uitvalswegen zijn binnen enkele minuten aan te rijden.

Door de woning heen:
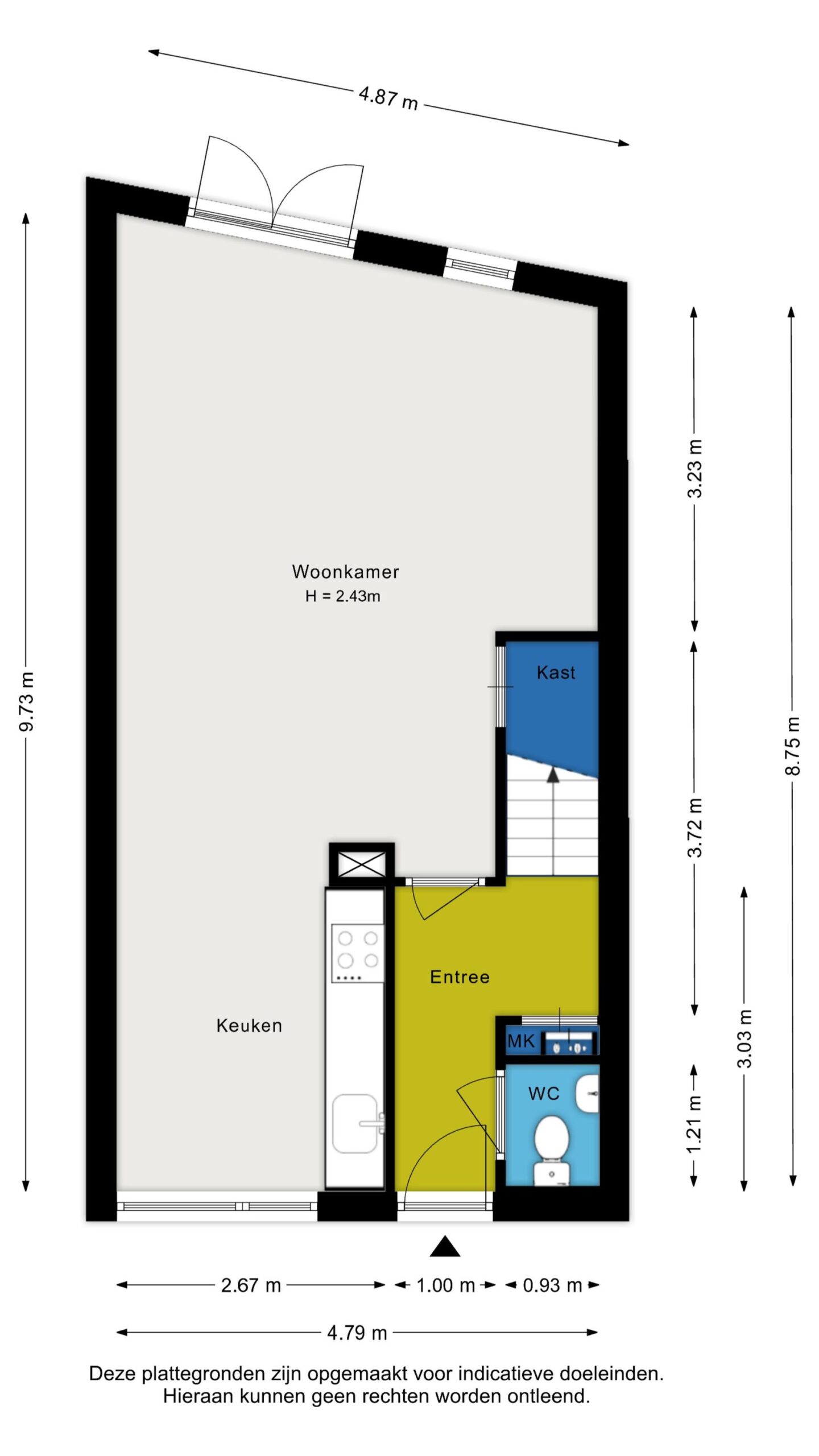
Via de entree kom je binnen in de hal met toilet, meterkast en trapopgang naar de verdieping. Aan de voorzijde van de woning bevindt zich de keuken, uitgevoerd in een donkere kleuropstelling en voorzien van diverse inbouwapparatuur. De woonkamer met trap/bergkast is een fijne, lichte leefruimte aan de achterzijde van de woning. Er is voldoende plaats voor een comfortabele zithoek en een ruime eethoek. Vanuit hier heb je via de openslaande deuren directe toegang tot de tuin.

Op de eerste verdieping geeft de overloop toegang tot drie slaapkamers, allen van een goed formaat. De slaapkamer aan de voorzijde van de woning is voorzien van een bergkast met opstelling C.V. en de wasmachine-aansluiting. De moderne badkamer is uitgerust met een whirlpool, separate douche en wastafelmeubel. De verdieping is voorzien van vloerverwarming.

Enkele kenmerken:
- Gebruiksoppervlakte 89 m², externe bergruimte 5 m² en inhoud 294 m³
- De woning wordt verkocht met een niet-zelfbewoningsclausule zonder NVM vragenlijst

Wil je deze woning bezichtigen? Plan dan zelf online een afspraak in via onze website of vraag een bezichtiging aan via Funda! Is er geen passend moment meer beschikbaar? Dat is geen probleem, bel of e-mail ons gerust voor een afspraak op een ander moment.

Kenmerken

Overdracht

  • Verkocht

Oppervlakte & inhoud

  • 89 m2
  • 294 m3
  • 110 m2
  • Zuid

Bouw

  • Woonruimte
  • Bestaande bouw
  • B
  • 1997

Indeling

  • 4
  • 3
  • Glasvezel kabel

Is dit niet jouw woning?

Plaats een zoekopdracht

Plaats een zoekopdracht

Jouw woning niet kunnen vinden in ons aanbod? Maak een zoekopdracht en we houden je op de hoogte van nieuw aanbod.

Gratis waardebepaling

Gratis waardebepaling

We verzorgen graag een gratis waardebepaling van jouw huidige woning, zo weet je precies waar je aan toe bent.

Meer hulp bij je aankoop

Meer hulp bij je aankoop

Moeite om de juiste woning te vinden of hulp nodig bij de onderhandeling? Daarvoor hebben we een speciale aankoopmakelaar.

© 2026 Van den Belt Makelaars | Algemene voorwaarden | Disclaimer | Privacy verklaring | Grafisch ontwerp Thumbs Up | Technische realisatie Sieronline B.V.