play-sharp-fill
  • 110 m2
  • 980 m2
  • 3
  • F

Vermeersweg 11

7391 JJ Twello
€ 676.000,- k.k.

Omschrijving

Ben je op zoek naar een keurige woning met garage en een royaal perceel? Welkom aan de Vermeersweg 11 in Twello!

Deze nette woning is door de jaren heen uitgebouwd aan zowel de zij- als achterkant, waardoor er veel extra leefruimte en een heerlijk zicht op het groen gerealiseerd is. Binnen vind je een prettig en lichte woonkamer, een ruime keuken met eethoek, drie slaapkamers en een zolderverdieping. Op het dak van de schuur zijn 8 zonnepanelen geplaatst.

De tuin is een echte blikvanger: royaal, groen en met volop privacy. Direct achter de woning ligt een terras waar je heerlijk buiten kunt zitten. Dankzij de ligging en de speelse indeling zijn er altijd zonnige én beschutte plekjes te vinden. Door het ruime perceel van 980 m² biedt de tuin ook verschillende mogelijkheden, denk hierbij aan het houden van een moestuin of het plaatsen van bijvoorbeeld een mantelzorgwoning (hiervoor dien je informatie in te winnen bij de gemeente.).

Voor wie graag de handen uit de mouwen steekt of veel bergruimte nodig heeft, is de grote stenen garage een uitkomst. Deze is voorzien van een veranda en een praktische vliering. Daarnaast beschikt het perceel over een houten tuinhuis met overkapping, perfect voor hobby, opslag of een sfeervolle loungehoek. Op de oprit is plek voor meerdere auto’s.

De woning is gelegen op een fraaie locatie aan de rand van Twello. Het centrum van Twello en de binnenstad van Deventer zijn prima per fiets te bereiken. De omgeving kenmerkt zich door de schitterende natuur met prachtige fiets- en wandelroutes. Voorzieningen als scholen, supermarkt, horeca, station zijn op korte afstand bereikbaar. Ook de uitvalswegen en snelweg A1 zijn binnen een paar minuten te bereiken.

Door de woning heen
Via de voordeur treed je binnen in de hal met meterkast en trapopgang naar de verdieping. De woonkamer is uitgebouwd aan de zijkant met een mooie aanbouw met grote raampartijen. Vanuit hier kijk je uit over het omliggende groen. Vanuit de woonkamer is de kelder bereikbaar. De keuken bevindt zich aan de achterzijde, de keuken is in een hoek opgesteld en uitgevoerd met de nodige inbouwapparatuur. Er is in de keuken voldoende ruimte voor een grote eethoek.
Vanuit de keuken loop je naar de hal met de aansluiting voor de wasmachine. Ook tref je hier het toilet en de badkamer welke is voorzien van een inloopdouche en wastafelmeubel.

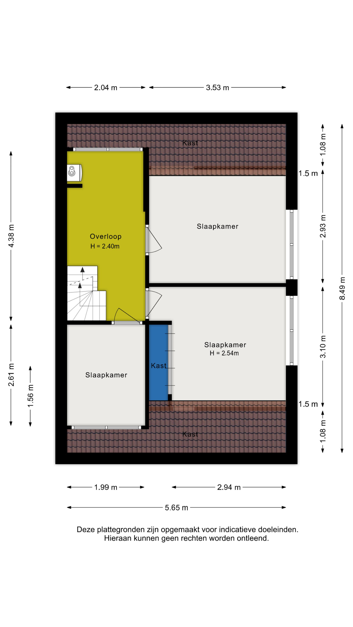
Op de eerste verdieping geeft de overloop toegang tot drie slaapkamers. Op de overloop is de opstelplaats voor de c.v.-ketel. Een van de slaapkamers is voorzien van een vaste kastenwand en een airco.

Via een vaste trap is de zolderverdieping bereikbaar, een ruimte waar een extra kamer gecreëerd kan worden.

Enkele kenmerken:
Energielabel F
Gebruiksoppervlakte 110 m², externe bergruimte 33 m² en inhoud 426 m³.

Is dit jouw woning?

Interesse in deze woning, plan dan een bezichtiging in. We laten je de woning graag zien.

Bezichtiging aanvragen

Kenmerken

Overdracht

  • € 676.000,- k.k.
  • Beschikbaar
  • In overleg

Oppervlakte & inhoud

  • 110 m2
  • 426 m3
  • 980 m2

Bouw

  • Woonruimte
  • Bestaande bouw
  • F
  • 1938

Indeling

  • 4
  • 3
  • Mechanische ventilatie, TV kabel, Buitenzonwering, Dakraam, Glasvezel kabel, Zonnepanelen
Download brochure

Is dit niet jouw woning?

Plaats een zoekopdracht

Plaats een zoekopdracht

Jouw woning niet kunnen vinden in ons aanbod? Maak een zoekopdracht en we houden je op de hoogte van nieuw aanbod.

Gratis waardebepaling

Gratis waardebepaling

We verzorgen graag een gratis waardebepaling van jouw huidige woning, zo weet je precies waar je aan toe bent.

Meer hulp bij je aankoop

Meer hulp bij je aankoop

Moeite om de juiste woning te vinden of hulp nodig bij de onderhandeling? Daarvoor hebben we een speciale aankoopmakelaar.

© 2025 Van den Belt Makelaars | Algemene voorwaarden | Disclaimer | Privacy verklaring | Grafisch ontwerp Thumbs Up | Technische realisatie Sieronline B.V.