play-sharp-fill
  • 97 m2
  • 502 m2
  • 2
  • B

Binnenweg 12

7383 CP Voorst
€ 549.000,- k.k.

Omschrijving

**WEGENS ENORME BELANGSTELLING IS ER EEN EXTRA OPEN HUIS DONDERDAG 12 FEBRUARI 14.00 UUR - 16.15 UUR***
WIJ HETEN JE VAN HARTE WELKOM MAAR VRAGEN WEL VRIENDELIJK OM EEN AANMELDING

Instapklaar wonen aan de rand van het dorp. Welkom aan de Binnenweg 12 in Voorst!

Aan de rustige rand van het dorp Voorst staat deze charmante twee-onder-een-kapwoning uit 1938. Een huis met karakter, maar dan volledig van deze tijd. De woning is recent van boven tot onder verbouwd en gerenoveerd, waardoor je hier zonder klussen kunt intrekken en direct kunt gaan genieten. Binnen tref je een moderne keuken die van alle gemakken is voorzien. Aansluitend is er een royale bijkeuken met aanrechtblok, ideaal als praktische werk- en bergruimte.

Tijdens de renovatie is veel aandacht besteed aan comfort en duurzaamheid. De woning is voorzien van gevel-, dak- en deels vloerisolatie, volledig uitgerust met dubbel glas en beschikt over energielabel B. Op het dak liggen 11 zonnepanelen, wat bijdraagt aan lagere energielasten en prettig wooncomfort. Ook zijn de keuken en de bijkeuken voorzien van vloerverwarming.

De tuin is verrassend ruim en gelegen aan de zijkant van de woning. Dankzij de ligging op het zuiden geniet je hier volop van de zon. Veel groen, een gazon en meerdere fijne plekken om te zitten maken dit een heerlijke buitenruimte. Achter in de tuin staat een grote houten schuur met tuinkamer: een sfeervolle plek met glazen wanden waar je het hele jaar door kunt genieten van je eigen groene omgeving. Met aan de achterzijde uitzicht op de kippenren waar je elke ochtend verse eitjes kunt pakken. Parkeren is geen probleem: op eigen terrein is ruimte voor twee auto’s.

De ligging maakt het plaatje compleet. Binnenweg 12 is gelegen aan de rand van Voorst, met het dorp en voorzieningen dichtbij, maar ook met de natuur letterlijk om de hoek. Vanuit huis wandel je zo het buitengebied in wat ideaal is voor rustzoekers, wandelaars en natuurliefhebbers.

Door de woning heen:
Via de achterdeur kom je de woning binnen in de bijkeuken. Een ideale ruimte met het toilet, een aanrechtblok en vaste kast als opbergruimte. Je loopt door naar de keuken, deze is uitgevoerd in moderne kleurstellingen en voorzien van alle hedendaagse gemakken. De openslaande glazen deuren geven je toegang tot de eetkamer en woonkamer, een ruimte die de karakteristieke sfeer laat zien. Via de woonkamer is de kelder bereikbaar.

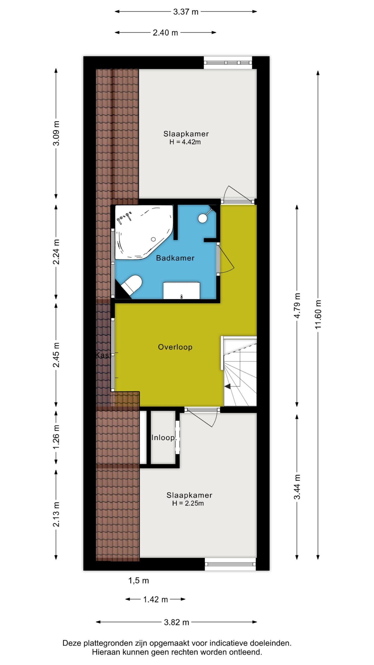
De vaste trap brengt je naar de verdieping met een royale overloop met dakkapel. Er zijn twee slaapkamers die beide van een goed formaat zijn. De badkamer is voorzien van een douche, ligbad, toilet en wastafelmeubel.

Via een luik is de bergzolder met c.v.-aansluiting bereikbaar.

Enkele kenmerken:
Gebruiksoppervlakte 97 m², inhoud 433 m³ en perceeloppervlakte 502 m²

Wil je deze woning bezichtigen? Plan dan eenvoudig zelf online een afspraak in via onze website. Graag op een ander moment een afspraak? Geen probleem, bel of e-mail ons gerust voor een afspraak op een ander moment.

Is dit jouw woning?

Interesse in deze woning, plan dan een bezichtiging in. We laten je de woning graag zien.

Bezichtiging aanvragen

Kenmerken

Overdracht

  • € 549.000,- k.k.
  • Beschikbaar
  • In overleg

Oppervlakte & inhoud

  • 97 m2
  • 433 m3
  • 502 m2

Bouw

  • Woonruimte
  • Bestaande bouw
  • B
  • 1938

Indeling

  • 3
  • 2
  • TV kabel, Glasvezel kabel, Zonnepanelen
Download brochure

Is dit niet jouw woning?

Plaats een zoekopdracht

Plaats een zoekopdracht

Jouw woning niet kunnen vinden in ons aanbod? Maak een zoekopdracht en we houden je op de hoogte van nieuw aanbod.

Gratis waardebepaling

Gratis waardebepaling

We verzorgen graag een gratis waardebepaling van jouw huidige woning, zo weet je precies waar je aan toe bent.

Meer hulp bij je aankoop

Meer hulp bij je aankoop

Moeite om de juiste woning te vinden of hulp nodig bij de onderhandeling? Daarvoor hebben we een speciale aankoopmakelaar.

© 2026 Van den Belt Makelaars | Algemene voorwaarden | Disclaimer | Privacy verklaring | Grafisch ontwerp Thumbs Up | Technische realisatie Sieronline B.V.